Nous suivre
Nos avis clients
Nos avis clients
0
Réf : Prado
Sous-compromis

T2 avec terrasse Castellane, habitation ou professionnel

Marseille (13006)
185 000 €

A propos de ce bien

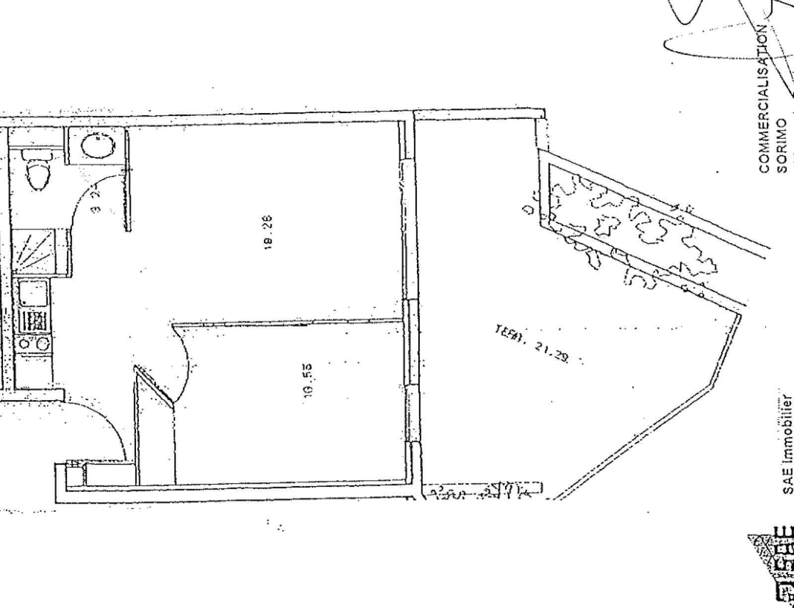
13006, Prado, tout proche Castellane, appartement deux pièces à usage d'habitation ou professionnel situé au premier étage avec grande terrasse, complètement rénové en 2023 et climatisation réversible installée.
L'appartement se compose d'un hall d'entrée, d'un dégagement avec kitchenette, d'un séjour de 13,78 m2 , d'une chambre de 10,27 m2 avec salle d'eau et emplacement placard. Les deux pièces communiquent avec une belle terrasse de 20 m2. Très calme et sans vis-à-vis.
Pour plus d'informations contactez Caroline Contoz au 06 80 62 53 21


Les informations sur les risques auxquels ce bien est exposé sont disponibles sur le site Géorisques

Descriptif du bien

TRAD_PAMPERO_Caracteristique Valeurs
Code postal 13006
Surface habitable (m²) 32,92 m²
Surface loi Carrez (m²) 32,92 m²
Nombre de chambre(s) 1
Nombre de pièces 2
Etage 1
TRAD_PAMPERO_Caracteristique Valeurs
Nb de salle d'eau 1
Cuisine Kitchenette
Type de cuisine SEMI-EQUIPEE
Balcon NON
Terrasse OUI
Cave NON
Année de construction 1997
TRAD_PAMPERO_Caracteristique Valeurs
Copropriété OUI
Lot n° 116
nombre de lots 6
Quote Part annuelle des charges 800 €
TRAD_PAMPERO_Caracteristique Valeurs
Prix de vente 185 000 €
Les honoraires d'agence seront intégralement à la charge du vendeur  
Charges 60 €
Taxe foncière annuelle 626 €
DPE GES
  • Commerces et santé
  • Loisirs
  • Ecoles
  • Transports
  • Pratique
Ce bien vous intéresse ?
Fieldset par défaut
Fieldset par défaut
Validation

* Champs obligatoires

Contacter l'agence
Validation
Les informations recueillies sur ce formulaire sont enregistrées dans un fichier informatisé par La Boite Immo agissant comme Sous-traitant du traitement pour la gestion de la clientèle/prospects de l'Agence / du Réseau qui reste Responsable du Traitement de vos Données personnelles.
La base légale du traitement repose sur l’intérêt légitime de l'Agence / du Réseau.
Elles sont conservées jusqu'à demande de suppression et sont destinées à l'Agence / au Réseau.
Conformément à la loi « informatique et libertés », vous pouvez exercer votre droit d'accès aux données vous concernant et les faire rectifier en contactant l'Agence / le Réseau.
Si vous estimez, après avoir contacté l'Agence / le Réseau, que vos droits « Informatique et Libertés » ne sont pas respectés, vous pouvez adresser une réclamation à la CNIL.
Nous vous informons de l’existence de la liste d'opposition au démarchage téléphonique « Bloctel », sur laquelle vous pouvez vous inscrire ici : https://www.bloctel.gouv.fr 
Dans le cadre de la protection des Données personnelles, nous vous invitons à ne pas inscrire de Données sensibles dans le champ de saisie libre
Ce site est protégé par reCAPTCHA, les Politiques de Confidentialité et les Conditions d'Utilisation de Google s'appliquent.